INVERNADERO SCB

  • + INFO

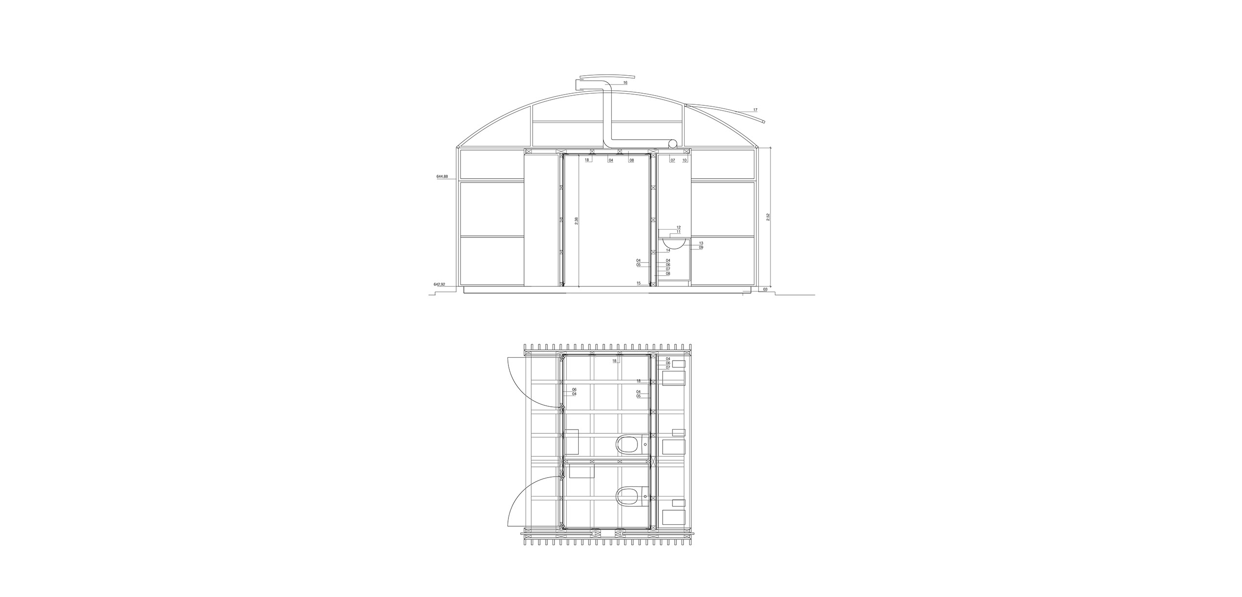
    Location: iIruña de Oca, Álava

    Status:  Proyect 2016.

    Program: Renovation of an old greenhouse for cultural uses

    Team:  Isuuru Arquitectos S.L.

    Client: City of Iruña de Oca