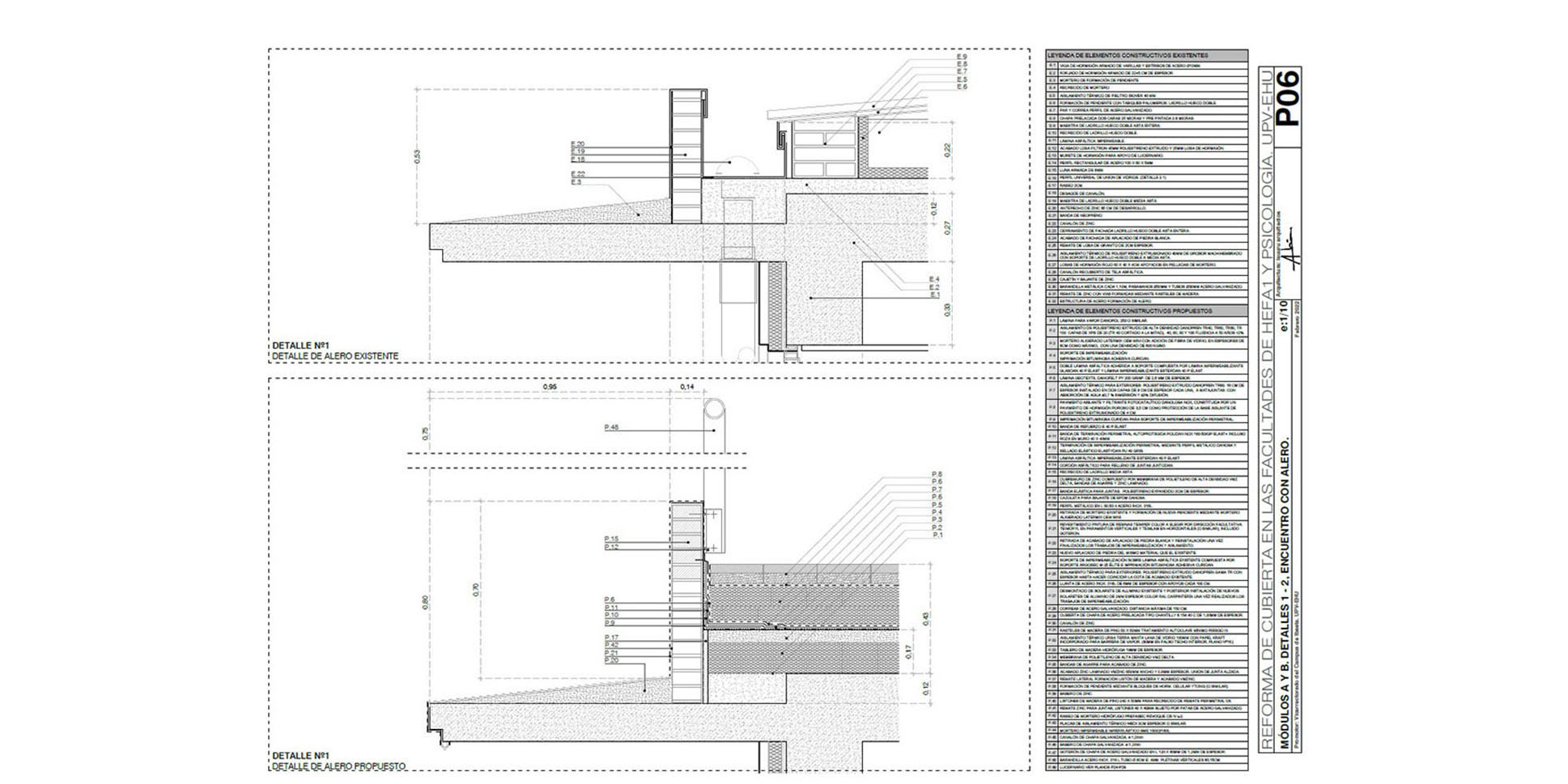
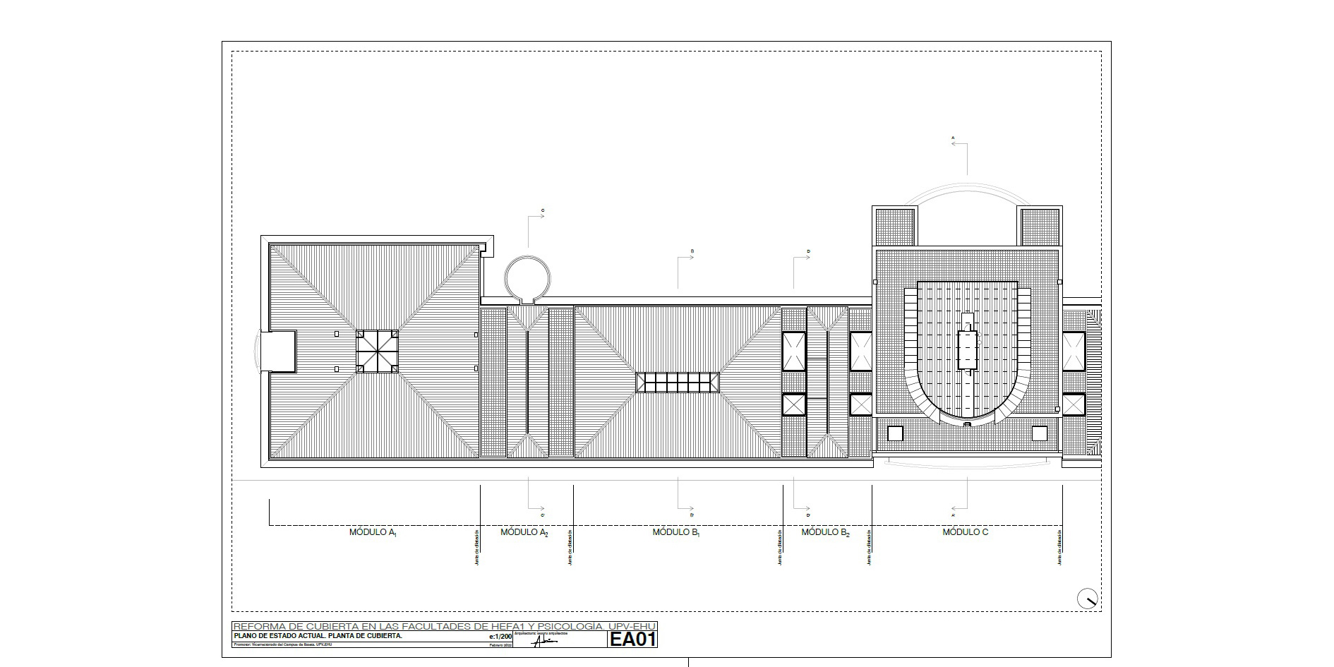
PSYCHOLOGY  FACULTY  ROOF

  • + INFO

    Location: Psychology Faculty. Ibaeta UPV /EHU Campus, San Sebastian.

    Status:  Project 2022.

    Program: Roof refurbishment.

    Team:  Isuuru

    Client: UPV / EHU

    Budget: 2.177.465 €