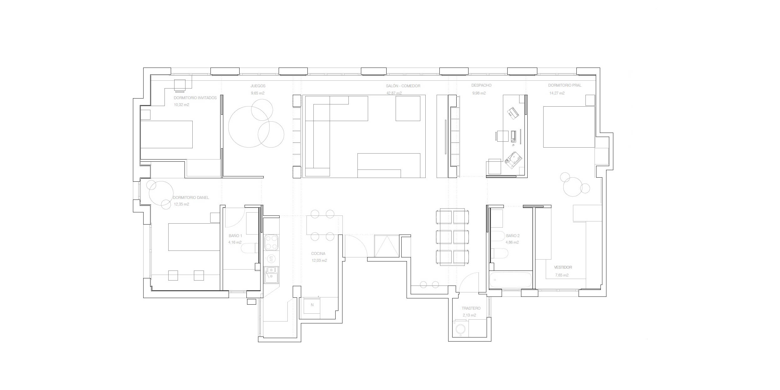
LMD HOUSE

  • + INFO

    Location: San Sebastián.

    Status: Finalized 2021.

    Program: Apartment refurbishment

    Team:  Isuuru

    Client: Laura, Mikel and Danel.