ONDARRETA

  • + INFO

    Location: Ondarreta, Donostia - San Sebastián.

    Status:  2014 Finalized

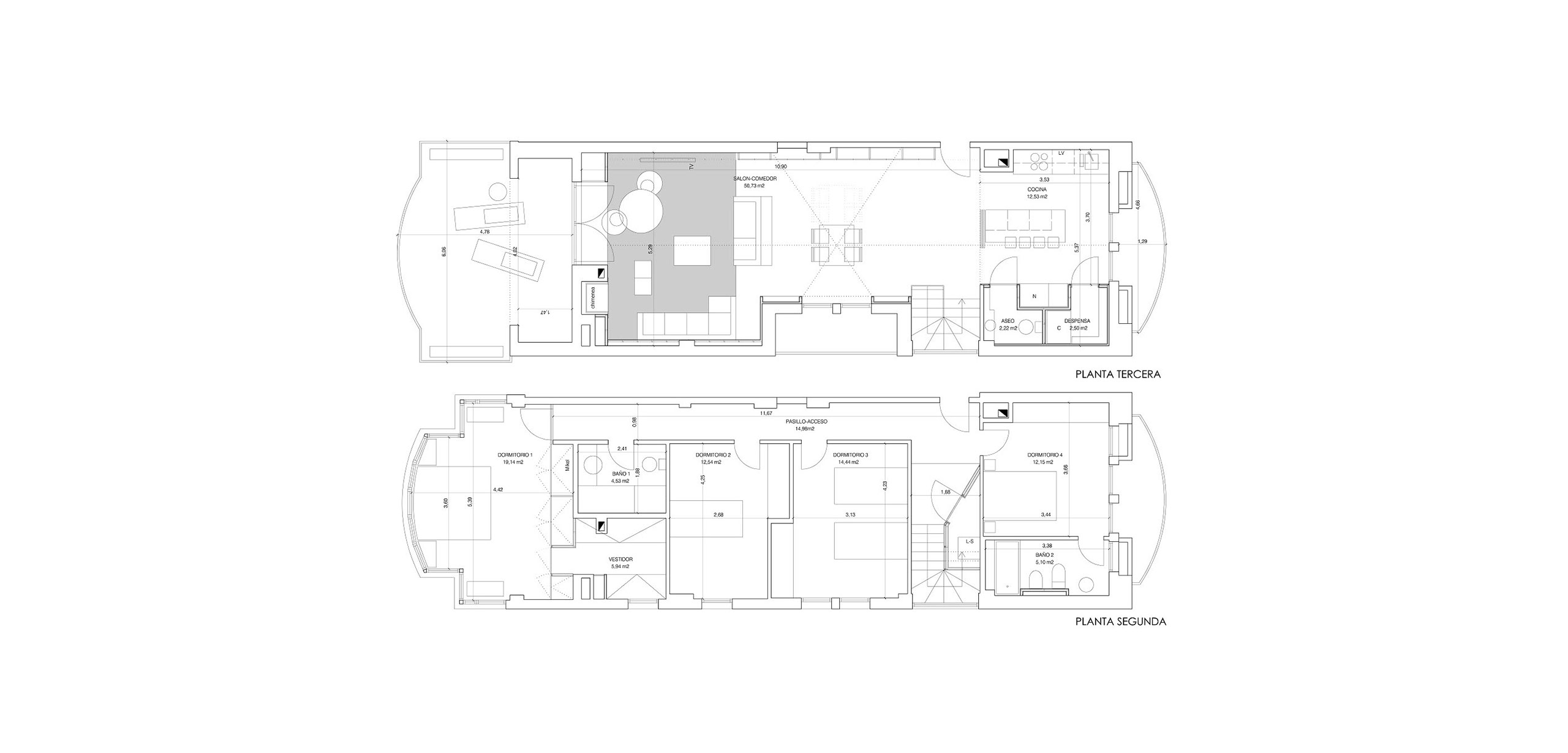
    Program: Legalisation of a building previous division + duplex penthouse renovation.

    Team:  Isuuru Arquitectos S.L.